4-Zimmer-Wohntraum über zwei Etagen mit zwei Balkonen
1300 EUR | | 111 m² | 4 ZimmerDiese besondere 4-Zimmer-Wohnung erstreckt sich über zwei Etagen und bietet großzügigen Wohnkomfort mit durchdachter Raumaufteilung.
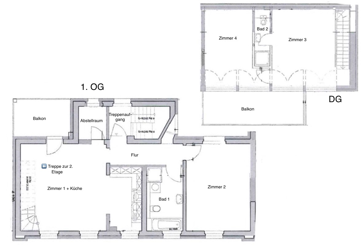
In der ersten Etage, gelegen im 1. Obergeschoss, befinden sich zwei helle Zimmer. Eines davon ist mit einer modernen Einbauküche ausgestattet und bietet Zugang zu einem Balkon. Auf dieser Etage befindet sich außerdem ein gefliestes Badezimmer mit Badewanne, ebenerdiger Dusche, Waschbecken und WC sowie ein praktischer Abstellraum.
Das Herzstück der Wohnung ist das großzügige Wohnzimmer mit offener Küche und einer eleganten Treppe, die in das Dachgeschoss führt.
Im Dachgeschoss erwarten Sie zwei weitere Zimmer sowie ein weiteres Badezimmer mit ebenerdiger Dusche, Waschbecken und WC. Ein absolutes Highlight ist der große Balkon sowie die beeindruckende Panoramafensterfront (von Boden bis Decke), die für besonders viel Tageslicht sorgt und der Wohnung ein offenes, modernes Wohngefühl verleiht.
Stellplätze können bei Bedarf angemietet werden.
Lage:
Die Wohnung befindet sich in zentraler Lage, Einkaufsmöglichkeiten, der Bahnhof sowie Freizeitangebote sind fußläufig erreichbar.
Ein verbrauchsabhängiger Energieausweis ist vorhanden (19,5 kWh/(m².a)
Für die Anmietung der Wohnung wird eine Schufa-Auskunft angefragt.
| Miete: | 1300 EUR |
| Nebenkosten: | 100 EUR |
| Heizkosten: | 130 |
| Gesamtmiete: | 1530 EUR |
| Kaution: | 3900 |
| Zimmer: | 4 |
| Badezimmer: | 2 |
| Gesamtfläche: | 111 m² |














