Gemütliche 1-Raum-Dachgeschosswohnung mit Einbauküche
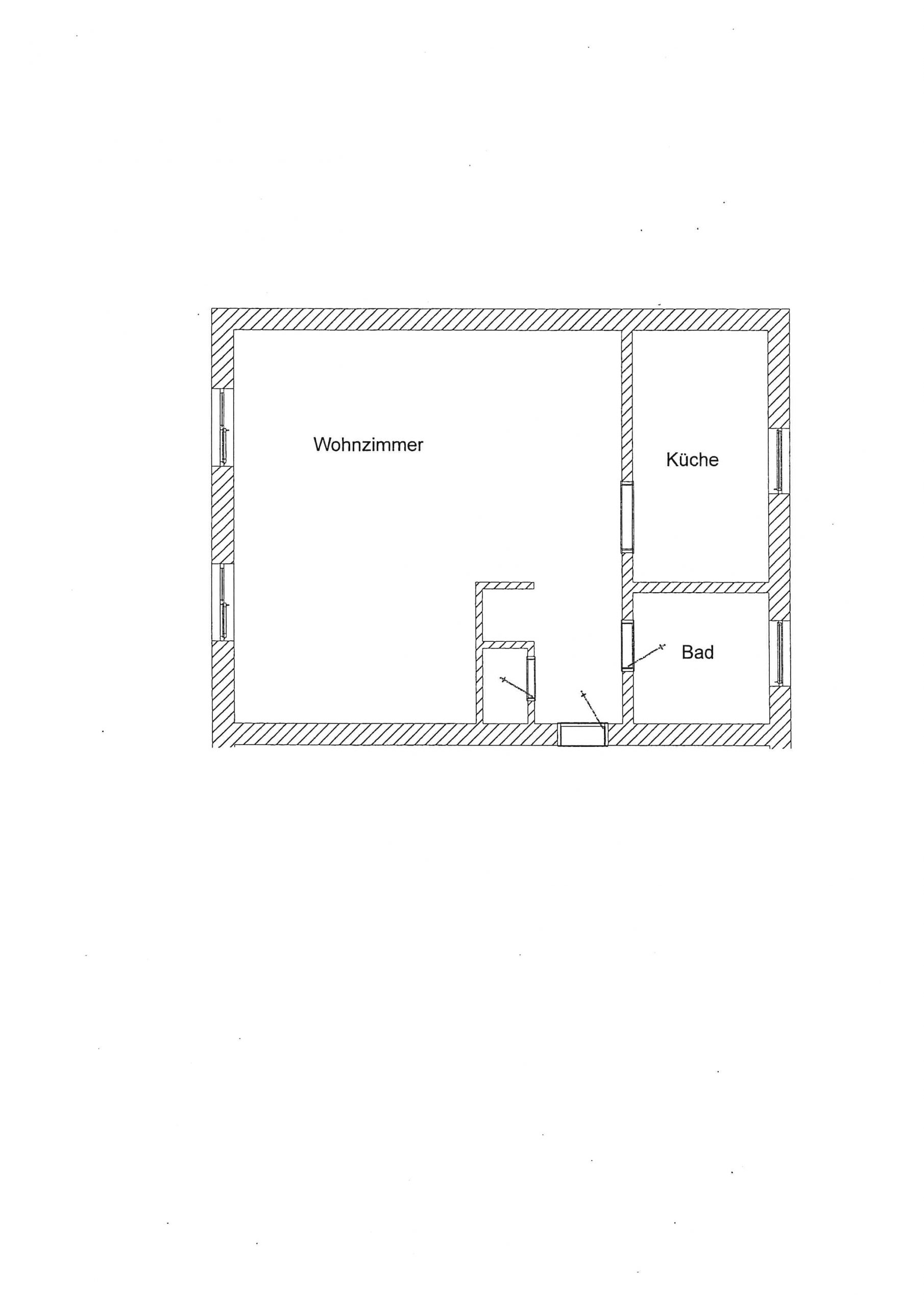
| | 48m² | 1 ZimmerDiese charmante Dachgeschosswohnung überzeugt durch ihren praktischen Schnitt und die durchdachte Raumaufteilung. Der große Wohnraum ist so gestaltet, dass er trotz offener Gestaltung optimal nutzbar ist: Durch die Balken lässt sich der Bereich perfekt in Schlaf- und Wohnzone mit Bett und Couch unterteilen.
Die Küche ist mit einer funktionalen Einbauküche ausgestattet und liegt etwas abgetrennt vom Wohnbereich, was den Raumcharakter angenehm unterstützt. Das Badezimmer ist gefliest und verfügt über eine Badewanne mit Glasduschwand.
Zusätzlichen Stauraum bietet eine Abstellkammer im Flur. Direkt am Wohnungseingang befindet sich außerdem eine praktische Nische für Jacken und Kleidung.
Lage: Die Wohnung befindet sich in der Karl-Marx-Straße 16 in 19322 Wittenberge. Die Lage ist zentral und bietet eine sehr gute Infrastruktur: Einkaufsmöglichkeiten, Restaurants und der Bahnhof sind fußläufig erreichbar. Gleichzeitig ist die Elbe nur wenige Minuten entfernt und lädt zu Spaziergängen oder sportlichen Aktivitäten ein.
Für die Anmietung der Wohnung wird eine Schufa-Auskunft angefragt.
Ein verbrauchsabhängiger Energieausweis ist vorhanden (145,2 kWh/(m².a)
| Nebenkosten: | 68 EUR |
| Heizkosten: | 90 |
| Gesamtmiete: | 498 EUR |
| Kaution: | 1395 |
| Zimmer: | 1 |
| Wohnfläche: | 48 m² |
| Etage: | 2 |
19322 Wittenberge
Deutschland













